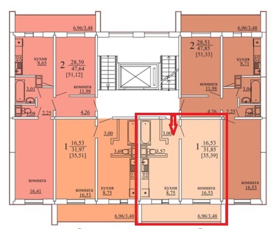
1-к. квартира, 35.51 м²
Продажа квартир на любой вкус и бюджет
Предлагаем Вашему вниманию однокомнатную квартиру, удобной планировки, кухня около 9 кв. метров и комната 16,53 метров. Удобное расположение дома.

В квартире выполнена качественная предчистовая отделка:
- входная металлическая дверь;
- потолок и стены подготовлены под финишное покрытие;
- стяжка на полу;
- электроразводка по всей квартире, установлены выключатели и розетки;
- имеются приборы учета ресурсов;
- пластиковые окна с «детскими» замками безопасности;

Хорошее качество строительства, благоустроенная придомовая территория.
Развитая инфраструктура. В шаговой доступности остановки общественного транспорта, детский сад №39, средняя школа №21, через дорогу парк Победы, где можно провести время с семьей, магазины разного направления, до Челябинска 10 минут.

От нас: полное сопровождение сделки от первого просмотра квартиры до получения ключей!
АН «Новый дом» имеет большой опыт в одобрении ипотеки любой сложности, сопровождение сделок. Поможем оформить ипотеку под данный объект. Также поможем продать Вашу недвижимость в кротчайшие сроки!
Если не дозвонились, пишите в сообщения, мы обязательно Вам перезвоним!!!
Ссылка на объявление: https://аннд.рф/obekty/sale/saleapartments/178966
3 820 000
Оксана


Челябинская область, Копейск, проспект Победы, д 48Б
redeemДанный объект можно приобрести в ипотеку

Информация об объекте

Количество комнат1-к квартира Этаж4 Площадь35.51 Жилая площадь16.53 Площадь кухни8.75 Балкон2 Совмещенных санузлов1 ОкнаУлица РемонтОтсутствует

Информация о доме

Название ЖКЖК Оешник Год постройки2023 Тип домаПанельный Этажей в доме10 Лифты грузовые1 Лифты пассажирские1 ПарковкаНаземная